色褪せにくく、通常の外壁に比べ2倍の耐久性を持つ金属サイディング。
軽量な素材であるため地震の際も建物への負担を軽減できます。
災害などへの強さだけではなく、最もコストがかかる外壁のメンテナンスを最小限に抑えることができるのも大きなメリット。
永く、家計に優しく、家族と共に100年生き続ける家を目指しました。

色褪せにくく、通常の外壁に比べ2倍の耐久性を持つ金属サイディング。
軽量な素材であるため地震の際も建物への負担を軽減できます。
災害などへの強さだけではなく、最もコストがかかる外壁のメンテナンスを最小限に抑えることができるのも大きなメリット。
永く、家計に優しく、家族と共に100年生き続ける家を目指しました。
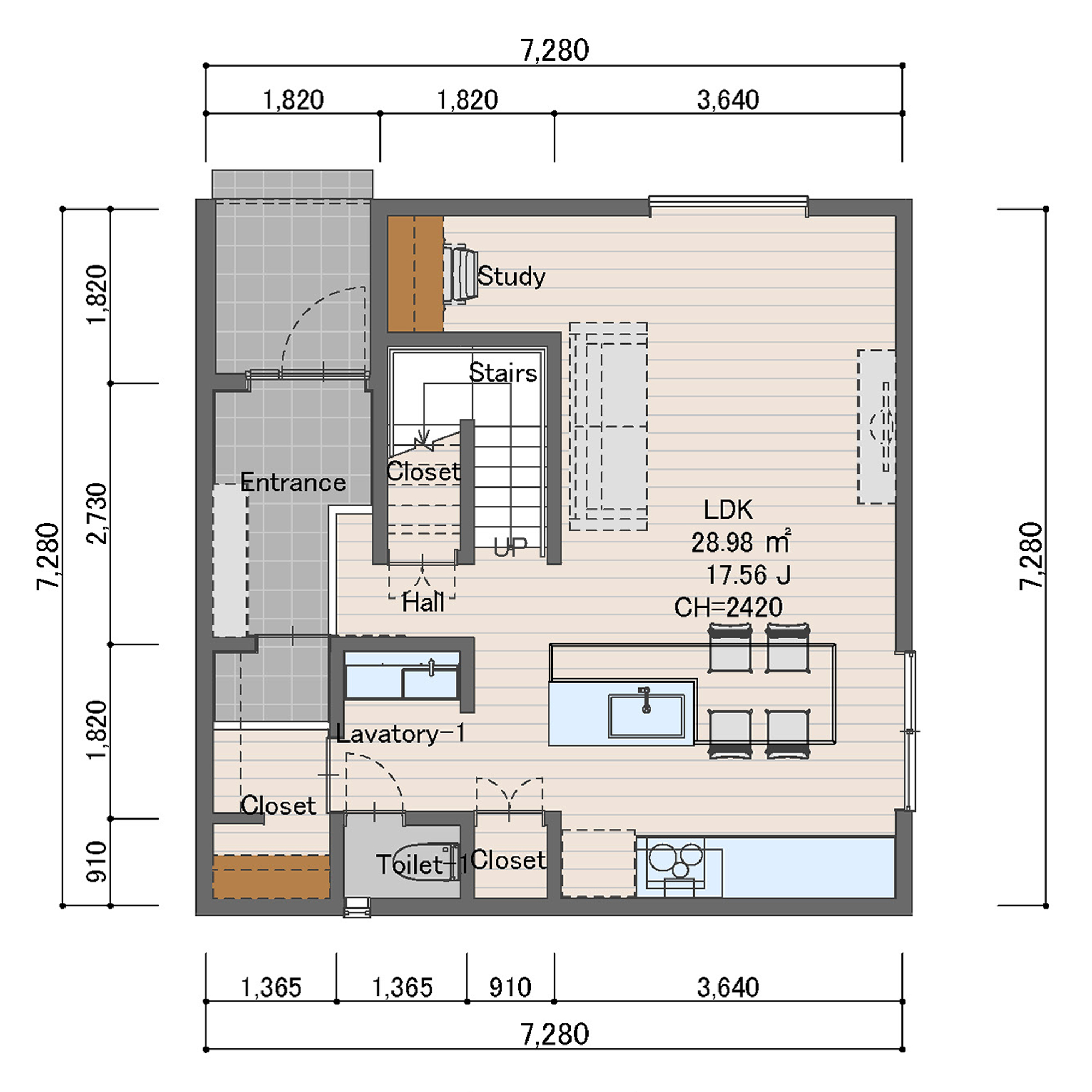
「間取りを自由に変えるって、そんなに大切なの?」
新しい家を考えている方は気づきにくいことかもしれません。
でも、数十年の家に住み続けたいと思えば、とても大切な意味を持ちます。
そして、一般的な家は、基礎の構造よって間取りの自由が限られています。
「耐久の家」なら、暮らしのどんな変化にも対応した間取りの変更がきます。
【参考例】
1F
2F
1F
2F
1F
2F
1F
2F
「耐久の家」は最も耐震性の高い「耐震等級3」を基準としており、震度6強~7の地震でも軽微な補修で住み続けられる耐震性能を確保しています。また、「耐久の家」の構造計算は、より強度を確保できる「許容応力度計算」を採用。より安心な住まいをお届けします。


断熱性能はUA値で表されています。UA値とは、家が外気温いどれだけ影響されるのかの指標で、数値が低いほど断熱性能が良いことになります。
当社では、どの季節でも快適に暮らせるUA値0.46以下の家を提供しています。
住宅の隙間をできる限り減らして機密性を高め、高性能の換気システムによって室内の快適できれいな空気を効率的に維持し、健康的な室内環境をつくり出します。一般的な住宅の10分の1しか隙間がありません。

BIM設計を活用することで、完成後の家の仕上がりを細部までリアルに確認できます。
そのため、「イメージと違った」というような失敗を防ぎ、満足度の高い家づくりが実現します。
2,000万円~ ※建物価格のみ
・UA値0.56(HEAT20基準)
・耐震等級3(許容応力度計算)
